Kleine Gewerbeeinheit direkt neben dem Karl-August-Platz
10625 Berlin, Bürohaus zur Miete
Objektdaten
-
Objekt-ID166628
-
ObjekttypenBüro/Praxis, Bürohaus
-
Adresse10625 Berlin
-
EtageEG
-
Etagen im Haus5
-
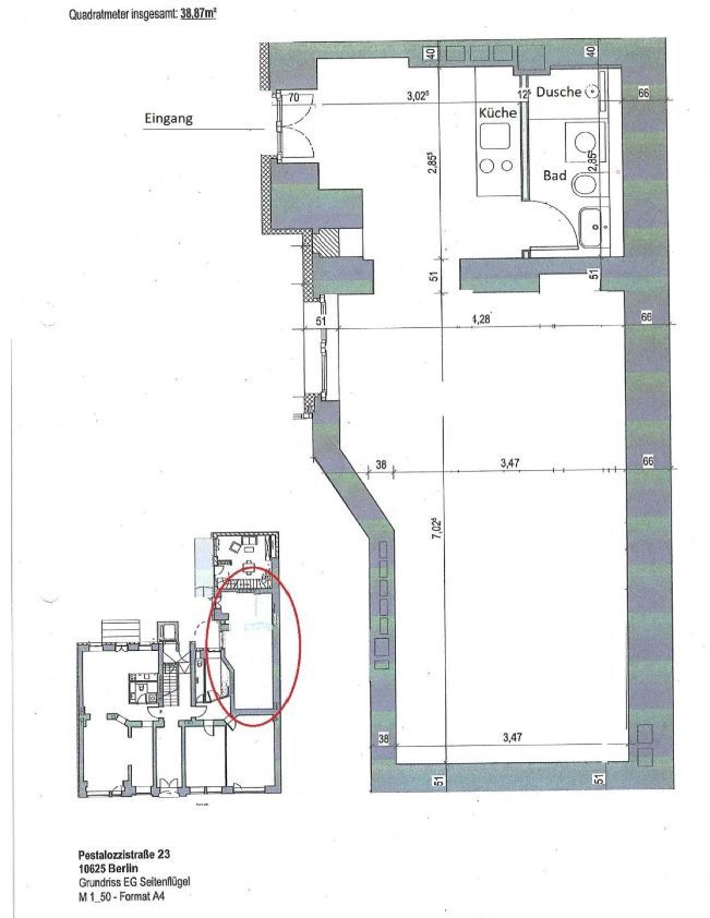
Bürofläche ca.38,87 m²
-
Gesamtfläche ca.38,87 m²
-
KücheEinbauküche
-
HeizungsartZentralheizung
-
Baujahr1894
-
Letzte Modernisierung2015
-
Zustandmodernisiert
-
Ausstattunggehoben
-
Mieterprovision (gewerblich)2.312,77 € zzgl. MwSt.
Die Provision ist unmittelbar nach Vertragsabschluss vom Mieter fällig. -
Kaution2.915,00 EUR
-
Kaltmiete971,75 EUR
-
Nebenkosten130,00 EUR
Ausstattung / Merkmale
- ✓ Dielenboden
- ✓ Einbauküche
- ✓ Personenaufzug
Energieausweis
-
EnergieausweistypVerbrauchsausweis
-
Ausstellungsdatumnach dem 1.5.2014
-
Baujahr lt. Energieausweis1894
-
PrimärenergieträgerFernwärme-Dampf
-
Endenergieverbrauch39,70 kWh/(m²·a)
-
EnergieeffizienzklasseC
Objektbeschreibung
Beschreibung
Diese gemütliche Büroeinheit befindet sich in einem modernen Gebäude in der Pestalozzistraße 23, 10625, Berlin. Die Fläche beträgt insgesamt 38,87 m² und ist im EG (Hinterhof). Die Einheit ist sehr kompakt und bietet einen Büroraum und einen Vorraum mit Küchenzeile mit angrenzendem Duschbad.
Ausstattung
Die Büroeinheit ist mit einer eingebauten Küche ausgestattet, die eine praktische Lösung für die Mittagszeit bietet. Die zentrale Heizungsanlage sorgt für eine angenehme Raumtemperatur. Die Energieeffizienzklasse C garantiert moderate Betriebskosten.
Die Mietfläche ist im Seitenflügel im Erdgeschoss gelegen und hat direkten Zugang zum Innenhof.
Ausstattung:
- Dielenböden – versiegelt,
- Glattputz an den Wänden,
- Neue Elektrik,
- Neue Holz-Isolierglas-Fenster mit einer West-Ausrichtung,
- Einbauküche,
- Duschbad,
- Fahrradstellplätze im Hof,
- Warm-Wasserversorgung erfolgt über einen Durchlauferhitzer,
- Nebenkosten sind inkl. der Heizkosten,
- Die Einheit wird zzgl. MwSt. vermietet.
Sonstiges
Die Büroeinheit ist ab dem 1. Februar 2026 verfügbar und kann zu einem monatlichen Mietpreis von 971,75 EUR netto pro Monat sowie zusätzlichen Betriebskosten von 80 EUR netto pro Monat und 50 EUR netto Heizkosten pro Monat angemietet werden, was zu einer Gesamtmiete von 1.101,75 EUR pro Monat netto führt. Zusätzlich zur Netto Miete wird die Umsatzsteuer mit derzeit 19 % (209,33 EUR) berechnet. Es sind keine Parkplätze direkt am Gebäude vorhanden, jedoch gibt es in der Umgebung Möglichkeiten zu Parken.
Lage
Die Gewerbeeinheit liegt in Berlin-Charlottenburg in der Pestalozzistraße 23 neben dem Karl-August-Platz mit dem wunderschönen Wochenmarkt. Mit eines der schönsten Gebäude am Platz aus dem Jahr 1894, wurde der Altbau vor wenigen Jahren kom- plett saniert.
Die Pestalozzistraße liegt in einem lebhaften Wohnviertel von Berlin, das sowohl durch seine schöne Architektur als auch durch die Nähe zu zahlreichen Annehmlichkeiten besticht. In der Umgebung finden Sie zahlreiche Cafés, Restaurants und Geschäfte. Die Anbindung an die öffentlichen Verkehrsmittel ist hervorragend, mit mehreren U-Bahn- und Buslinien in unmittelbarer Nähe, die eine schnelle Erreichbarkeit des Stadtzentrums und anderer Stadtteile ermöglichen.
Die dargestellte Position der Immobilie ist nur eine ungefähre Angabe.









