Grundstück in Barhöft – Traumhafte Lage zum Bauen
18445 Klausdorf, Grundstück gemischt genutzt zum Kauf
Objektdaten
-
Objekt-ID183322
-
ObjekttypenGrundstück, Grundstück gemischt genutzt
-
Adresse18445 Klausdorf
-
Gesamtfläche ca.1.733 m²
-
Grundstück ca.1.733 m²
-
AusstattungStandard
-
Erschließungvollerschlossen
-
Preisauf Anfrage
Energieausweis
-
Energieausweisnicht vorhanden
Objektbeschreibung
Beschreibung
Grundstück in Barhöft – Traumhafte Lage zum Bauen
Zum Verkauf steht ein attraktives Grundstück in der malerischen Ortschaft Barhöft, eingetragen im Grundbuch Klausdorf. Das Grundstück in Barhöft bietet eine einmalige Gelegenheit, sich in einer der schönsten Küstenregionen Deutschlands niederzulassen.
Grundstücksbeschreibung: Das Grundstück befindet sich in einem ausgewiesenen B-Plangebiet und ist daher sofort bebaubar. Es eignet sich hervorragend für den Bau eines Einfamilienhauses oder eines Ferienhauses, ideal für Naturliebhaber und Menschen, die die Schönheit der Ostsee genießen möchten.
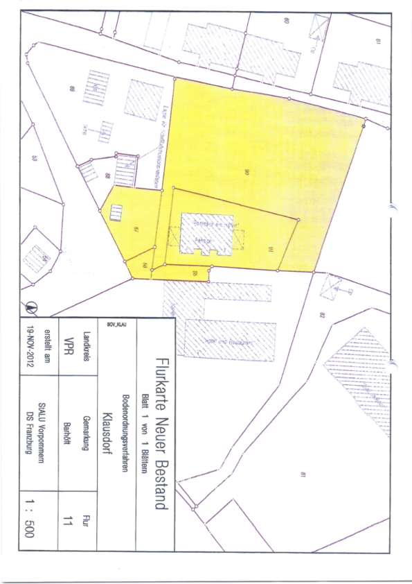
Die Fläche setzt sich aus folgenden Flurstücken zusammen:
Flur 11: Flurstück 85 – 58 m²
Flur 11: Flurstück 86 – 40 m²
Flur 11: Flurstück 87 – 214 m²
Flur 11, Flurstück 90 – 1 479 m²
Gesamtfläche: 1 791 m²
Sonstiges
Besonderheiten:
- Sofort bebaubar dank B-Plan-Status
- Attraktive Lage in Küstennähe
- Großzügige Grundstücksfläche für vielfältige Bauoptionen
- Ideal für Natur- und Meeresliebhaber
- Geh- und Fahrrechte (Grunddienstbarkeiten) vorhanden, die das benachbarte Gebäude auf Flurstück 91 schützen
Bei Interesse oder für weitere Informationen stehen wir Ihnen gerne zur Verfügung.
Lage
Das Grundstück liegt in einer ruhigen, gut erschlossenen Gegend von Barhöft, nur wenige Gehminuten von der Ostseeküste entfernt. In der näheren Umgebung befinden sich wunderschöne Wanderwege, der charmante Hafen von Barhöft sowie Möglichkeiten für Wassersport und Bootsfahrten.
Die Nähe zu Stralsund bietet zudem eine gute Anbindung an städtische Infrastruktur, während man dennoch die Vorteile des Landlebens in einer unberührten Natur genießt.
Für Segelbegeisterte ist die Lage ideal: Barhöft liegt direkt an der Ostsee und bietet mit seinem charmanten Hafen einen hervorragenden Ausgangspunkt für Segeltörns. Die Region ist bekannt für ihre sanften Winde und ruhigen Gewässer, die sowohl für Anfänger als auch für erfahrene Segler ideal sind. Zudem ist die Insel Hiddensee, die als eine der schönsten Ostseeinseln gilt, nur eine kurze Segelfahrt entfernt. Hiddensee beeindruckt mit seiner unberührten Natur, den langen Sandstränden und den malerischen Dünenlandschaften. Die Insel ist autofrei, was zur ruhigen und entspannten Atmosphäre beiträgt. Ein Segeltörn nach Hiddensee ist ein absolutes Muss für alle, die die Schönheit der Ostsee in vollen Zügen genießen möchten.
Dieses Grundstück ist daher nicht nur für Naturliebhaber, sondern auch für Segelfans ein wahres Paradies.
Die dargestellte Position der Immobilie ist nur eine ungefähre Angabe.









![FlurkarteBarhöft[45] - Grundstück in Barhöft – Traumhafte Lage zum Bauen](https://www.harald-thies.com/wp-content/uploads/immomakler/attachments/0e8a363240c951b98d88f548cbf1c0d5/33324de0-b3a4-4e9a-901e-682f9a762093-78x110.jpeg)